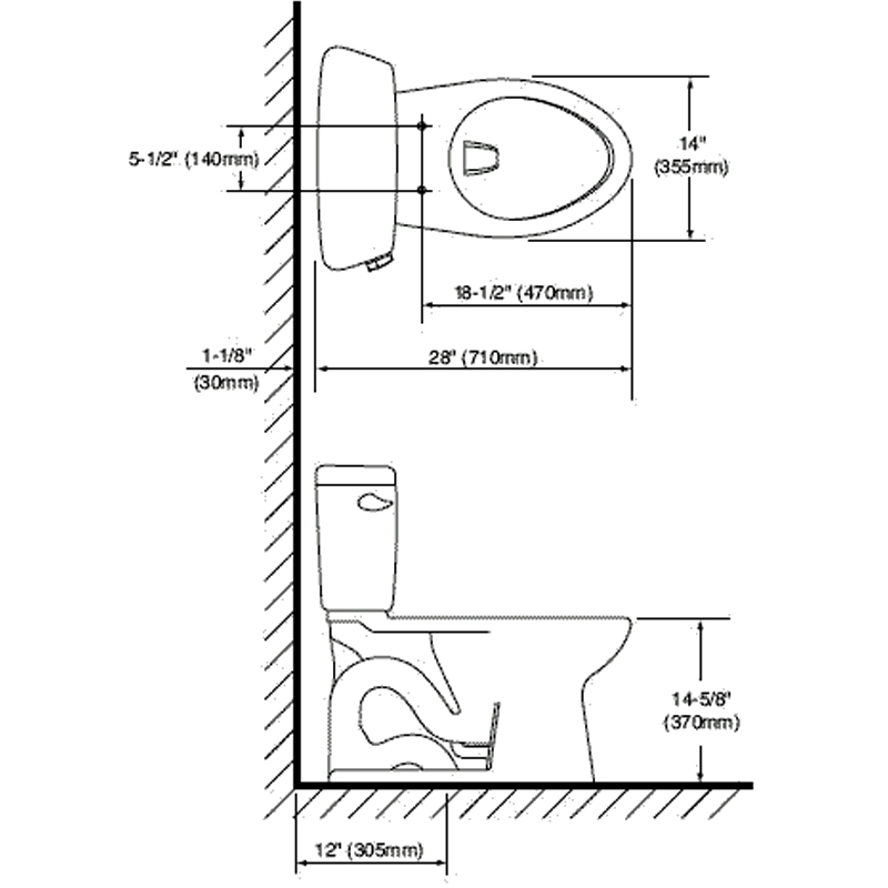
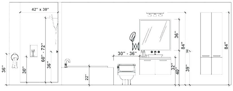
Bathroom Code Page
Facebook Instagram Twitter YouTube Google Plus Yelp Email Phone